No Script

←  Back

Project Deliverables

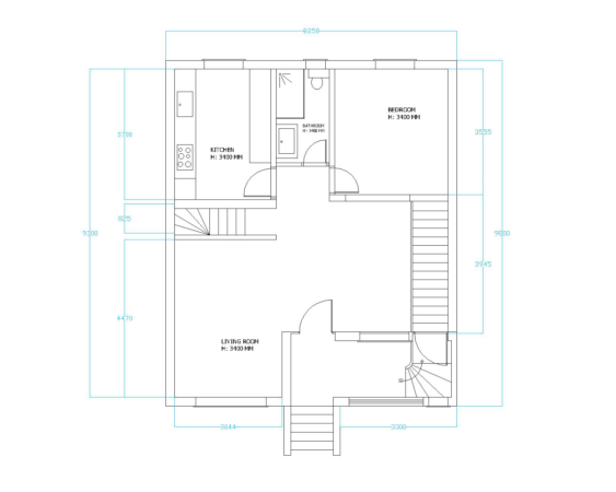
Floor Plan Layout

  • Dining area
  • Kitchen cabinet finishes
  • Living room
  • Toilet
  • Study

Concept Board

The idea was to create a timeless, cozy & warm atmosphere using design codes from the seaside, yet keeping in mind that although on the seaside this is a city house.

3D Perspectives

The client liked the realism of the view. They could project themselves in the space.

Project Details

Floor area

67 m²

Project Scope

The client wanted the all space to be redesigned, keeping only the kitchen location and creating an open space for a dining & a living room. One of their concern was to increase the storage space using the space below the stairs.

Space(s) Designed

Dining & Living room
1 Powder room

1 Study library corner

Style(s) Selected

Scandinavian
Mid-century
Coastal

Client Testimonials

Work Quality
5.0
Communication
5.0
Value For Money
5.0
Overall Rating
5.0
Virgile Viasnoff
Virgile Viasnoff

Client

5.0

30 August 2022

Our experience with The Live Design Project was a real hit! It was so useful for us to help conceive the layout of our future house. We had two floors to renovate with a lot of possibilities and choices to decide upon. The concept of having 3 proposals per floor was incredibly helpful to test different ideas. We were so pleased to see the level of details that the three Juniors provided us with. In the end, we obtained a full plan details, choices for the furniture and addresses where the different elements could be purchased (flooring, paint, decoration…). Delphine Leon, the senior architect was also very generous with her own suggestions, her ability to understand our tastes and her explanation of the various choices we can make. Overall, the experience was not only useful but made us realize the full potential of the house with ideas we would never had thought about before. All this at a very reasonable price! Thanks to all the team
Read more ↓