Project Details
Project Scope
Create changing rooms and enhance store aesthetics ( Layout, finishes, furniture )
Space(s) Designed
Store
Style(s) Selected
Client’s identity and branding
Arts University Bournemouth, united kingdom
Winning Student
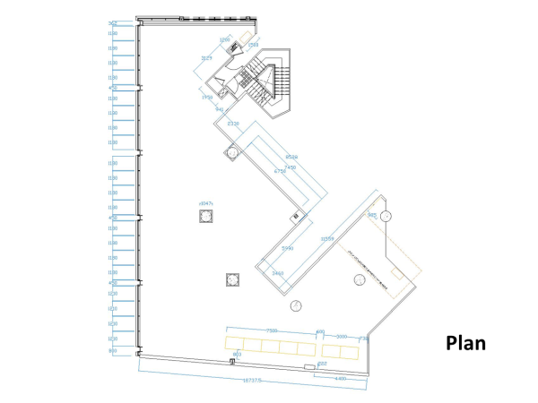
The layout plan focuses on maximizing retail and office space, enhancing the overall look and feel of the store. Functional areas are strategically organized to ensure efficient use of space, while improving the brand image. Key considerations include optimizing flow and accessibility, creation of changing rooms, while prioritizing stock security.
The moodboard aligns with the branding image, with black & white primary tones to which grey is incorporated. This minimalist palette allows the unique identity of each brand to stand out while maintaining a cohesive aesthetic. Key elements include clean lines and understated design details that emphasize functionality.
The 3D renderings showcase the store’s refined simplicity, with black tones providing a versatile backdrop. The space is designed for both style and efficiency, with clean lines, optimized office layouts, and stock storage. The renderings highlight the balance between practicality and modern elegance.
Project Details
Project Scope
Create changing rooms and enhance store aesthetics ( Layout, finishes, furniture )
Space(s) Designed
Store
Style(s) Selected
Client’s identity and branding
1. AGREEMENT TO TERMS
These Terms of Use constitute a legally binding agreement made between you, whether personally or on behalf of an entity (“you”) and The Live Design Project PTE. LTD., doing business as TLDP ("TLDP," “we," “us," or “our”), concerning your access to and use of the thelivedesignproject.com website as well as any other media form, media channel, mobile website or mobile application related, linked, or otherwise connected thereto (collectively, the “Site”). We are registered in Singapore and have our registered office at 190 Middle Rd, Singapore 188979, Singapore, Fortune Centre 188979. You agree that by accessing the Site, you have read, understood, and agreed to be bound by all of these Terms of Use. IF YOU DO NOT AGREE WITH ALL OF THESE TERMS OF USE, THEN YOU ARE EXPRESSLY PROHIBITED FROM USING THE SITE AND YOU MUST DISCONTINUE USE IMMEDIATELY.
Supplemental terms and conditions or documents that may be posted on the Site from time to time are hereby expressly incorporated herein by reference. We reserve the right, in our sole discretion, to make changes or modifications to these Terms of Use at any time and for any reason. We will alert you about any changes by updating the “Last updated” date of these Terms of Use, and you waive any right to receive specific notice of each such change. Please ensure that you check the applicable Terms every time you use our Site so that you understand which Terms apply. You will be subject to, and will be deemed to have been made aware of and to have accepted, the changes in any revised Terms of Use by your continued use of the Site after the date such revised Terms of Use are posted.
The information provided on the Site is not intended for distribution to or use by any person or entity in any jurisdiction or country where such distribution or use would be contrary to law or regulation or which would subject us to any registration requirement within such jurisdiction or country. Accordingly, those persons who choose to access the Site from other locations do so on their own initiative and are solely responsible for compliance with local laws, if and to the extent local laws are applicable.
The Site is not tailored to comply with industry-specific regulations (Health Insurance Portability and Accountability Act (HIPAA), Federal Information Security Management Act (FISMA), etc.), so if your interactions would be subjected to such laws, you may not use this Site. You may not use the Site in a way that would violate the Gramm-Leach-Bliley Act (GLBA).
The Site is intended for users who are at least 13 years of age. All users who are minors in the jurisdiction in which they reside (generally under the age of 18) must have the permission of, and be directly supervised by, their parent or guardian to use the Site. If you are a minor, you must have your parent or guardian read and agree to these Terms of Use prior to you using the Site.
2. INTELLECTUAL PROPERTY RIGHTS
Unless otherwise indicated, the Site is our proprietary property and all source code, databases, functionality, software, website designs, audio, video, text, photographs, and graphics on the Site (collectively, the “Content”) and the trademarks, service marks, and logos contained therein (the “Marks”) are owned or controlled by us or licensed to us, and are protected by copyright and trademark laws and various other intellectual property rights and unfair competition laws of the United States, international copyright laws, and international conventions. The Content and the Marks are provided on the Site “AS IS” for your information and personal use only. Except as expressly provided in these Terms of Use, no part of the Site and no Content or Marks may be copied, reproduced, aggregated, republished, uploaded, posted, publicly displayed, encoded, translated, transmitted, distributed, sold, licensed, or otherwise exploited for any commercial purpose whatsoever, without our express prior written permission.
Provided that you are eligible to use the Site, you are granted a limited license to access and use the Site and to download or print a copy of any portion of the Content to which you have properly gained access solely for your personal, non-commercial use. We reserve all rights not expressly granted to you in and to the Site, the Content and the Marks.
3. USER REPRESENTATIONS
By using the Site, you represent and warrant that: (1) all registration information you submit will be true, accurate, current, and complete; (2) you will maintain the accuracy of such information and promptly update such registration information as necessary; (3) you have the legal capacity and you agree to comply with these Terms of Use; (4) you are not under the age of 13; (5) you are not a minor in the jurisdiction in which you reside, or if a minor, you have received parental permission to use the Site; (6) you will not access the Site through automated or non-human means, whether through a bot, script, or otherwise; (7) you will not use the Site for any illegal or unauthorized purpose; and (8) your use of the Site will not violate any applicable law or regulation.
If you provide any information that is untrue, inaccurate, not current, or incomplete, we have the right to suspend or terminate your account and refuse any and all current or future use of the Site (or any portion thereof).
4. USER REGISTRATION
You may be required to register with the Site. You agree to keep your password confidential and will be responsible for all use of your account and password. We reserve the right to remove, reclaim, or change a username you select if we determine, in our sole discretion, that such username is inappropriate, obscene, or otherwise objectionable.
5. PROHIBITED ACTIVITIES
You may not access or use the Site for any purpose other than that for which we make the Site available. The Site may not be used in connection with any commercial endeavors except those that are specifically endorsed or approved by us.
As a user of the Site, you agree not to:
6. USER GENERATED CONTRIBUTIONS
The Site does not offer users to submit or post content. We may provide you with the opportunity to create, submit, post, display, transmit, perform, publish, distribute, or broadcast content and materials to us or on the Site, including but not limited to text, writings, video, audio, photographs, graphics, comments, suggestions, or personal information or other material (collectively, "Contributions"). Contributions may be viewable by other users of the Site and through third-party websites. As such, any Contributions you transmit may be treated in accordance with the Site Privacy Policy. When you create or make available any Contributions, you thereby represent and warrant that:
Any use of the Site in violation of the foregoing violates these Terms of Use and may result in, among other things, termination or suspension of your rights to use the Site.
7. CONTRIBUTION LICENSE
You agree that we may access, store, process, and use any information and personal data that you provide following the terms of the Privacy Policy and your choices (including settings).
By submitting suggestions or other feedback regarding the Site, you agree that we can use and share such feedback for any purpose without compensation to you.
We do not assert any ownership over your Contributions. You retain full ownership of all of your Contributions and any intellectual property rights or other proprietary rights associated with your Contributions. We are not liable for any statements or representations in your Contributions provided by you in any area on the Site. You are solely responsible for your Contributions to the Site and you expressly agree to exonerate us from any and all responsibility and to refrain from any legal action against us regarding your Contributions.
8. SUBMISSIONS
You acknowledge and agree that any questions, comments, suggestions, ideas, feedback, or other information regarding the Site ("Submissions") provided by you to us are non-confidential and shall become our sole property. We shall own exclusive rights, including all intellectual property rights, and shall be entitled to the unrestricted use and dissemination of these Submissions for any lawful purpose, commercial or otherwise, without acknowledgment or compensation to you. You hereby waive all moral rights to any such Submissions, and you hereby warrant that any such Submissions are original with you or that you have the right to submit such Submissions. You agree there shall be no recourse against us for any alleged or actual infringement or misappropriation of any proprietary right in your Submissions.
9. SITE MANAGEMENT
We reserve the right, but not the obligation, to: (1) monitor the Site for violations of these Terms of Use; (2) take appropriate legal action against anyone who, in our sole discretion, violates the law or these Terms of Use, including without limitation, reporting such user to law enforcement authorities; (3) in our sole discretion and without limitation, refuse, restrict access to, limit the availability of, or disable (to the extent technologically feasible) any of your Contributions or any portion thereof; (4) in our sole discretion and without limitation, notice, or liability, to remove from the Site or otherwise disable all files and content that are excessive in size or are in any way burdensome to our systems; and (5) otherwise manage the Site in a manner designed to protect our rights and property and to facilitate the proper functioning of the Site.
10. PRIVACY POLICY
We care about data privacy and security. By using the Site, you agree to be bound by our Privacy Policy, which is incorporated into these Terms of Use. Please be advised the Site is hosted in Singapore. If you access the Site from any other region of the world with laws or other requirements governing personal data collection, use, or disclosure that differ from applicable laws in Singapore, then through your continued use of the Site, you are transferring your data to Singapore, and you agree to have your data transferred to and processed in Singapore. Further, we do not knowingly accept, request, or solicit information from children or knowingly market to children. Therefore, in accordance with the U.S. Children’s Online Privacy Protection Act, if we receive actual knowledge that anyone under the age of 13 has provided personal information to us without the requisite and verifiable parental consent, we will delete that information from the Site as quickly as is reasonably practical.
11. TERM AND TERMINATION
These Terms of Use shall remain in full force and effect while you use the Site. WITHOUT LIMITING ANY OTHER PROVISION OF THESE TERMS OF USE, WE RESERVE THE RIGHT TO, IN OUR SOLE DISCRETION AND WITHOUT NOTICE OR LIABILITY, DENY ACCESS TO AND USE OF THE SITE (INCLUDING BLOCKING CERTAIN IP ADDRESSES), TO ANY PERSON FOR ANY REASON OR FOR NO REASON, INCLUDING WITHOUT LIMITATION FOR BREACH OF ANY REPRESENTATION, WARRANTY, OR COVENANT CONTAINED IN THESE TERMS OF USE OR OF ANY APPLICABLE LAW OR REGULATION. WE MAY TERMINATE YOUR USE OR PARTICIPATION IN THE SITE OR DELETE YOUR ACCOUNT AND ANY CONTENT OR INFORMATION THAT YOU POSTED AT ANY TIME, WITHOUT WARNING, IN OUR SOLE DISCRETION.
If we terminate or suspend your account for any reason, you are prohibited from registering and creating a new account under your name, a fake or borrowed name, or the name of any third party, even if you may be acting on behalf of the third party. In addition to terminating or suspending your account, we reserve the right to take appropriate legal action, including without limitation pursuing civil, criminal, and injunctive redress.
12. MODIFICATIONS AND INTERRUPTIONS
We reserve the right to change, modify, or remove the contents of the Site at any time or for any reason at our sole discretion without notice. However, we have no obligation to update any information on our Site. We also reserve the right to modify or discontinue all or part of the Site without notice at any time. We will not be liable to you or any third party for any modification, price change, suspension, or discontinuance of the Site.
We cannot guarantee the Site will be available at all times. We may experience hardware, software, or other problems or need to perform maintenance related to the Site, resulting in interruptions, delays, or errors. We reserve the right to change, revise, update, suspend, discontinue, or otherwise modify the Site at any time or for any reason without notice to you. You agree that we have no liability whatsoever for any loss, damage, or inconvenience caused by your inability to access or use the Site during any downtime or discontinuance of the Site. Nothing in these Terms of Use will be construed to obligate us to maintain and support the Site or to supply any corrections, updates, or releases in connection therewith.
13. GOVERNING LAW
These Terms shall be governed by and defined following the laws of Singapore. The Live Design Project PTE. LTD. and yourself irrevocably consent that the courts of Singapore shall have exclusive jurisdiction to resolve any dispute which may arise in connection with these terms.
14. DISPUTE RESOLUTION
Informal Negotiations
To expedite resolution and control the cost of any dispute, controversy, or claim related to these Terms of Use (each "Dispute" and collectively, the “Disputes”) brought by either you or us (individually, a “Party” and collectively, the “Parties”), the Parties agree to first attempt to negotiate any Dispute (except those Disputes expressly provided below) informally for at least thirty (30) days before initiating arbitration. Such informal negotiations commence upon written notice from one Party to the other Party.
Binding Arbitration
Any dispute arising out of or in connection with this contract, including any question regarding its existence, validity, or termination, shall be referred to and finally resolved by the International Commercial Arbitration Court under the Singapore Arbitration Chamber. The seat, or legal place, of arbitration shall be Singapore, Singapore. The language of the proceedings shall be English. The governing law of the contract shall be the substantive law of Singapore.
Restrictions
The Parties agree that any arbitration shall be limited to the Dispute between the Parties individually. To the full extent permitted by law, (a) no arbitration shall be joined with any other proceeding; (b) there is no right or authority for any Dispute to be arbitrated on a class-action basis or to utilize class action procedures; and (c) there is no right or authority for any Dispute to be brought in a purported representative capacity on behalf of the general public or any other persons.
Exceptions to Informal Negotiations and Arbitration
The Parties agree that the following Disputes are not subject to the above provisions concerning informal negotiations and binding arbitration: (a) any Disputes seeking to enforce or protect, or concerning the validity of, any of the intellectual property rights of a Party; (b) any Dispute related to, or arising from, allegations of theft, piracy, invasion of privacy, or unauthorized use; and (c) any claim for injunctive relief. If this provision is found to be illegal or unenforceable, then neither Party will elect to arbitrate any Dispute falling within that portion of this provision found to be illegal or unenforceable and such Dispute shall be decided by a court of competent jurisdiction within the courts listed for jurisdiction above, and the Parties agree to submit to the personal jurisdiction of that court.
15. CORRECTIONS
There may be information on the Site that contains typographical errors, inaccuracies, or omissions, including descriptions, pricing, availability, and various other information. We reserve the right to correct any errors, inaccuracies, or omissions and to change or update the information on the Site at any time, without prior notice.
16. DISCLAIMER
THE SITE IS PROVIDED ON AN AS-IS AND AS-AVAILABLE BASIS. YOU AGREE THAT YOUR USE OF THE SITE AND OUR SERVICES WILL BE AT YOUR SOLE RISK. TO THE FULLEST EXTENT PERMITTED BY LAW, WE DISCLAIM ALL WARRANTIES, EXPRESS OR IMPLIED, IN CONNECTION WITH THE SITE AND YOUR USE THEREOF, INCLUDING, WITHOUT LIMITATION, THE IMPLIED WARRANTIES OF MERCHANTABILITY, FITNESS FOR A PARTICULAR PURPOSE, AND NON-INFRINGEMENT. WE MAKE NO WARRANTIES OR REPRESENTATIONS ABOUT THE ACCURACY OR COMPLETENESS OF THE SITE’S CONTENT OR THE CONTENT OF ANY WEBSITES LINKED TO THE SITE AND WE WILL ASSUME NO LIABILITY OR RESPONSIBILITY FOR ANY (1) ERRORS, MISTAKES, OR INACCURACIES OF CONTENT AND MATERIALS, (2) PERSONAL INJURY OR PROPERTY DAMAGE, OF ANY NATURE WHATSOEVER, RESULTING FROM YOUR ACCESS TO AND USE OF THE SITE, (3) ANY UNAUTHORIZED ACCESS TO OR USE OF OUR SECURE SERVERS AND/OR ANY AND ALL PERSONAL INFORMATION AND/OR FINANCIAL INFORMATION STORED THEREIN, (4) ANY INTERRUPTION OR CESSATION OF TRANSMISSION TO OR FROM THE SITE, (5) ANY BUGS, VIRUSES, TROJAN HORSES, OR THE LIKE WHICH MAY BE TRANSMITTED TO OR THROUGH THE SITE BY ANY THIRD PARTY, AND/OR (6) ANY ERRORS OR OMISSIONS IN ANY CONTENT AND MATERIALS OR FOR ANY LOSS OR DAMAGE OF ANY KIND INCURRED AS A RESULT OF THE USE OF ANY CONTENT POSTED, TRANSMITTED, OR OTHERWISE MADE AVAILABLE VIA THE SITE. WE DO NOT WARRANT, ENDORSE, GUARANTEE, OR ASSUME RESPONSIBILITY FOR ANY PRODUCT OR SERVICE ADVERTISED OR OFFERED BY A THIRD PARTY THROUGH THE SITE, ANY HYPERLINKED WEBSITE, OR ANY WEBSITE OR MOBILE APPLICATION FEATURED IN ANY BANNER OR OTHER ADVERTISING, AND WE WILL NOT BE A PARTY TO OR IN ANY WAY BE RESPONSIBLE FOR MONITORING ANY TRANSACTION BETWEEN YOU AND ANY THIRD-PARTY PROVIDERS OF PRODUCTS OR SERVICES. AS WITH THE PURCHASE OF A PRODUCT OR SERVICE THROUGH ANY MEDIUM OR IN ANY ENVIRONMENT, YOU SHOULD USE YOUR BEST JUDGMENT AND EXERCISE CAUTION WHERE APPROPRIATE.
17. LIMITATIONS OF LIABILITY
IN NO EVENT WILL WE OR OUR DIRECTORS, EMPLOYEES, OR AGENTS BE LIABLE TO YOU OR ANY THIRD PARTY FOR ANY DIRECT, INDIRECT, CONSEQUENTIAL, EXEMPLARY, INCIDENTAL, SPECIAL, OR PUNITIVE DAMAGES, INCLUDING LOST PROFIT, LOST REVENUE, LOSS OF DATA, OR OTHER DAMAGES ARISING FROM YOUR USE OF THE SITE, EVEN IF WE HAVE BEEN ADVISED OF THE POSSIBILITY OF SUCH DAMAGES.
18. INDEMNIFICATION
You agree to defend, indemnify, and hold us harmless, including our subsidiaries, affiliates, and all of our respective officers, agents, partners, and employees, from and against any loss, damage, liability, claim, or demand, including reasonable attorneys’ fees and expenses, made by any third party due to or arising out of: (1) use of the Site; (2) breach of these Terms of Use; (3) any breach of your representations and warranties set forth in these Terms of Use; (4) your violation of the rights of a third party, including but not limited to intellectual property rights; or (5) any overt harmful act toward any other user of the Site with whom you connected via the Site. Notwithstanding the foregoing, we reserve the right, at your expense, to assume the exclusive defense and control of any matter for which you are required to indemnify us, and you agree to cooperate, at your expense, with our defense of such claims. We will use reasonable efforts to notify you of any such claim, action, or proceeding which is subject to this indemnification upon becoming aware of it.
19. USER DATA
We will maintain certain data that you transmit to the Site for the purpose of managing the performance of the Site, as well as data relating to your use of the Site. Although we perform regular routine backups of data, you are solely responsible for all data that you transmit or that relates to any activity you have undertaken using the Site. You agree that we shall have no liability to you for any loss or corruption of any such data, and you hereby waive any right of action against us arising from any such loss or corruption of such data.
20. ELECTRONIC COMMUNICATIONS, TRANSACTIONS, AND SIGNATURES
Visiting the Site, sending us emails, and completing online forms constitute electronic communications. You consent to receive electronic communications, and you agree that all agreements, notices, disclosures, and other communications we provide to you electronically, via email and on the Site, satisfy any legal requirement that such communication be in writing. YOU HEREBY AGREE TO THE USE OF ELECTRONIC SIGNATURES, CONTRACTS, ORDERS, AND OTHER RECORDS, AND TO ELECTRONIC DELIVERY OF NOTICES, POLICIES, AND RECORDS OF TRANSACTIONS INITIATED OR COMPLETED BY US OR VIA THE SITE. You hereby waive any rights or requirements under any statutes, regulations, rules, ordinances, or other laws in any jurisdiction which require an original signature or delivery or retention of non-electronic records, or to payments or the granting of credits by any means other than electronic means.
21. CALIFORNIA USERS AND RESIDENTS
If any complaint with us is not satisfactorily resolved, you can contact the Complaint Assistance Unit of the Division of Consumer Services of the California Department of Consumer Affairs in writing at 1625 North Market Blvd., Suite N 112, Sacramento, California 95834 or by telephone at (800) 952-5210 or (916) 445-1254.
22. MISCELLANEOUS
These Terms of Use and any policies or operating rules posted by us on the Site or in respect to the Site constitute the entire agreement and understanding between you and us. Our failure to exercise or enforce any right or provision of these Terms of Use shall not operate as a waiver of such right or provision. These Terms of Use operate to the fullest extent permissible by law. We may assign any or all of our rights and obligations to others at any time. We shall not be responsible or liable for any loss, damage, delay, or failure to act caused by any cause beyond our reasonable control. If any provision or part of a provision of these Terms of Use is determined to be unlawful, void, or unenforceable, that provision or part of the provision is deemed severable from these Terms of Use and does not affect the validity and enforceability of any remaining provisions. There is no joint venture, partnership, employment or agency relationship created between you and us as a result of these Terms of Use or use of the Site. You agree that these Terms of Use will not be construed against us by virtue of having drafted them. You hereby waive any and all defenses you may have based on the electronic form of these Terms of Use and the lack of signing by the parties hereto to execute these Terms of Use.
23. CONTACT US
In order to resolve a complaint regarding the Site or to receive further information regarding use of the Site, please contact us at:
The Live Design Project PTE. LTD.
MBIA Centre, 31 Boon Tat Street #02-01 Singapore 069625
Singapore
Phone: (+65) 9248 4883
WEBSITE DISCLAIMER
The information provided by The Live Design Project ("we," "us," or "our") on thelivedesignproject.com (the "Site") and our mobile application - If applicable, is for general informational purposes only. All information on the Site and our mobile application is provided in good faith, however we make no representation or warranty of any kind, express or implied, regarding the accuracy, adequacy, validity, reliability, availability, or completeness of any information on the Site or our mobile application. UNDER NO CIRCUMSTANCE SHALL WE HAVE ANY LIABILITY TO YOU FOR ANY LOSS OR DAMAGE OF ANY KIND INCURRED AS A RESULT OF THE USE OF THE SITE OR OUR MOBILE APPLICATION OR RELIANCE ON ANY INFORMATION PROVIDED ON THE SITE AND OUR MOBILE APPLICATION. YOUR USE OF THE SITE AND OUR MOBILE APPLICATION AND YOUR RELIANCE ON ANY INFORMATION ON THE SITE AND OUR MOBILE APPLICATION IS SOLELY AT YOUR OWN RISK.
PRIVACY POLICY
Data Protection Officer: Delphine Leon Bellancourt
contact email: tldp@thelivedesignproject.com
This privacy notice for the live design project ("Company," "we," "us," or "our"), describes how and why we might collect, store, use, and/or share ("process") your information when you use our services ("Services"), such as when you:
Questions or concerns? Reading this privacy notice will help you understand your privacy rights and choices. If you do not agree with our policies and practices, please do not use our Services. If you still have any questions or concerns, please contact us at info@thelivedesignproject.com.
SUMMARY OF KEY POINTS
What personal information do we process? When you visit, use, or navigate our Services, we may process personal information depending on how you interact with the live design project and the Services, the choices you make, and the products and features you use.
Do we process any sensitive personal information? We do not process sensitive personal information.
Do we receive any information from third parties? We do not receive any information from third parties.
How do we process your information? We process your information to provide, improve, and administer our Services, communicate with you, for security and fraud prevention, and to comply with law. We may also process your information for other purposes with your consent. We process your information only when we have a valid legal reason to do so.
In what situations and with which parties do we share personal information? We may share information in specific situations and with specific third parties.
How do we keep your information safe? We have organisational and technical processes and procedures in place to protect your personal information. However, no electronic transmission over the internet or information storage technology can be guaranteed to be 100% secure, so we cannot promise or guarantee that hackers, cybercriminals, or other unauthorised third parties will not be able to defeat our security and improperly collect, access, steal, or modify your information.
What are your rights? Depending on where you are located geographically, the applicable privacy law may mean you have certain rights regarding your personal information.
Want to learn more about what the live design project does with any information we collect?
1. WHAT INFORMATION DO WE COLLECT?
Personal information you disclose to us
In Short: We collect personal information that you provide to us.
We collect personal information that you voluntarily provide to us when you express an interest in obtaining information about us or our products and Services, when you participate in activities on the Services, or otherwise when you contact us.
Personal Information Provided by You. The personal information that we collect depends on the context of your interactions with us and the Services, the choices you make, and the products and features you use. The personal information we collect may include the following:
Sensitive Information. We do not process sensitive information.
All personal information that you provide to us must be true, complete, and accurate, and you must notify us of any changes to such personal information.
2. HOW DO WE PROCESS YOUR INFORMATION?
In Short: We process your information to provide, improve, and administer our Services, communicate with you, for security and fraud prevention, and to comply with law. We may also process your information for other purposes with your consent.
We process your personal information for a variety of reasons, depending on how you interact with our Services, including:
3. WHAT LEGAL BASES DO WE RELY ON TO PROCESS YOUR INFORMATION?
In Short: We only process your personal information when we believe it is necessary and we have a valid legal reason (i.e., legal basis) to do so under applicable law, like with your consent, to comply with laws, to provide you with services to enter into or fulfill our contractual obligations, to protect your rights, or to fulfill our legitimate business interests.
If you are located in the EU or UK, this section applies to you.
The General Data Protection Regulation (GDPR) and UK GDPR require us to explain the valid legal bases we rely on in order to process your personal information. As such, we may rely on the following legal bases to process your personal information:
4. WHEN AND WITH WHOM DO WE SHARE YOUR PERSONAL INFORMATION?
In Short: We may share information in specific situations described in this section and/or with the following third parties.
We may need to share your personal information in the following situations:
5. DO WE USE COOKIES AND OTHER TRACKING TECHNOLOGIES?
In Short: We may use cookies and other tracking technologies to collect and store your information.
We may use cookies and similar tracking technologies (like web beacons and pixels) to access or store information. Specific information about how we use such technologies and how you can refuse certain cookies is set out in our Cookie Notice.
6. HOW LONG DO WE KEEP YOUR INFORMATION?
In Short: We keep your information for as long as necessary to fulfill the purposes outlined in this privacy notice unless otherwise required by law.
We will only keep your personal information for as long as it is necessary for the purposes set out in this privacy notice, unless a longer retention period is required or permitted by law (such as tax, accounting, or other legal requirements). No purpose in this notice will require us keeping your personal information for longer than 1 year.
When we have no ongoing legitimate business need to process your personal information, we will either delete or anonymize such information, or, if this is not possible (for example, because your personal information has been stored in backup archives), then we will securely store your personal information and isolate it from any further processing until deletion is possible.
7. HOW DO WE KEEP YOUR INFORMATION SAFE?
In Short: We aim to protect your personal information through a system of organisational and technical security measures.
We have implemented appropriate and reasonable technical and organisational security measures designed to protect the security of any personal information we process. However, despite our safeguards and efforts to secure your information, no electronic transmission over the Internet or information storage technology can be guaranteed to be 100% secure, so we cannot promise or guarantee that hackers, cybercriminals, or other unauthorised third parties will not be able to defeat our security and improperly collect, access, steal, or modify your information. Although we will do our best to protect your personal information, transmission of personal information to and from our Services is at your own risk. You should only access the Services within a secure environment.
8. DO WE COLLECT INFORMATION FROM MINORS?
In Short: We do not knowingly collect data from or market to children under 18 years of age.
We do not knowingly solicit data from or market to children under 18 years of age. By using the Services, you represent that you are at least 18 or that you are the parent or guardian of such a minor and consent to such minor dependent’s use of the Services. If we learn that personal information from users less than 18 years of age has been collected, we will deactivate the account and take reasonable measures to promptly delete such data from our records. If you become aware of any data we may have collected from children under age 18, please contact us at info@thelivedesignproject.com.
9. WHAT ARE YOUR PRIVACY RIGHTS?
In Short: In some regions, such as the European Economic Area (EEA) and United Kingdom (UK), you have rights that allow you greater access to and control over your personal information. You may review, change, or terminate your account at any time.
In some regions (like the EEA and UK), you have certain rights under applicable data protection laws. These may include the right (i) to request access and obtain a copy of your personal information, (ii) to request rectification or erasure; (iii) to restrict the processing of your personal information; and (iv) if applicable, to data portability. In certain circumstances, you may also have the right to object to the processing of your personal information.
We will consider and act upon any request in accordance with applicable data protection laws.
If you are located in the EEA or UK and you believe we are unlawfully processing your personal information, you also have the right to complain to your local data protection supervisory authority. You can find their contact details here: https://ec.europa.eu/justice/data-protection/bodies/authorities/index_en.htm.
If you are located in Switzerland, the contact details for the data protection authorities are available here: https://www.edoeb.admin.ch/edoeb/en/home.html.
Withdrawing your consent: If we are relying on your consent to process your personal information, which may be express and/or implied consent depending on the applicable law, you have the right to withdraw your consent at any time. You can withdraw your consent at any time by contacting us.
However, please note that this will not affect the lawfulness of the processing before its withdrawal, nor when applicable law allows, will it affect the processing of your personal information conducted in reliance on lawful processing grounds other than consent.
Opting out of marketing and promotional communications: You can unsubscribe from our marketing and promotional communications at any time by clicking on the unsubscribe link in the emails that we send, or by contacting us. You will then be removed from the marketing lists. However, we may still communicate with you — for example, to send you service-related messages that are necessary for the administration and use of your account, to respond to service requests, or for other non-marketing purposes.
Cookies and similar technologies: Most Web browsers are set to accept cookies by default. If you prefer, you can usually choose to set your browser to remove cookies and to reject cookies. If you choose to remove cookies or reject cookies, this could affect certain features or services of our Services. To opt out of interest-based advertising by advertisers on our Services visit www.aboutads.info/choices/.
10. CONTROLS FOR DO-NOT-TRACK FEATURES
Most web browsers and some mobile operating systems and mobile applications include a Do-Not-Track ("DNT") feature or setting you can activate to signal your privacy preference not to have data about your online browsing activities monitored and collected. At this stage no uniform technology standard for recognizing and implementing DNT signals has been finalised. As such, we do not currently respond to DNT browser signals or any other mechanism that automatically communicates your choice not to be tracked online. If a standard for online tracking is adopted that we must follow in the future, we will inform you about that practice in a revised version of this privacy notice.
11. DO CALIFORNIA RESIDENTS HAVE SPECIFIC PRIVACY RIGHTS?
In Short: Yes, if you are a resident of California, you are granted specific rights regarding access to your personal information.
California Civil Code Section 1798.83, also known as the "Shine The Light" law, permits our users who are California residents to request and obtain from us, once a year and free of charge, information about categories of personal information (if any) we disclosed to third parties for direct marketing purposes and the names and addresses of all third parties with which we shared personal information in the immediately preceding calendar year. If you are a California resident and would like to make such a request, please submit your request in writing to us using the contact information provided below.
If you are under 18 years of age, reside in California, and have a registered account with Services, you have the right to request removal of unwanted data that you publicly post on the Services. To request removal of such data, please contact us using the contact information provided below and include the email address associated with your account and a statement that you reside in California. We will make sure the data is not publicly displayed on the Services, but please be aware that the data may not be completely or comprehensively removed from all our systems (e.g., backups, etc.).
12. DO WE MAKE UPDATES TO THIS NOTICE?
In Short: Yes, we will update this notice as necessary to stay compliant with relevant laws.
We may update this privacy notice from time to time. The updated version will be indicated by an updated "Revised" date and the updated version will be effective as soon as it is accessible. If we make material changes to this privacy notice, we may notify you either by prominently posting a notice of such changes or by directly sending you a notification. We encourage you to review this privacy notice frequently to be informed of how we are protecting your information.
13. HOW CAN YOU CONTACT US ABOUT THIS NOTICE?
If you have questions or comments about this notice, you may email us at ambassador@thelivedesignproject.com or by post to:
The Live Design Project PTE. LTD
The Live Design Project PTE. LTD.
MBIA Centre 31 Boon Tat Street #02-01
Singapore 069625
14. HOW CAN YOU REVIEW, UPDATE, OR DELETE THE DATA WE COLLECT FROM YOU?
Based on the applicable laws of your country, you may have the right to request access to the personal information we collect from you, change that information, or delete it.
TLDP@thelivedesignproject.com