No Script

←  Back

Project Deliverables

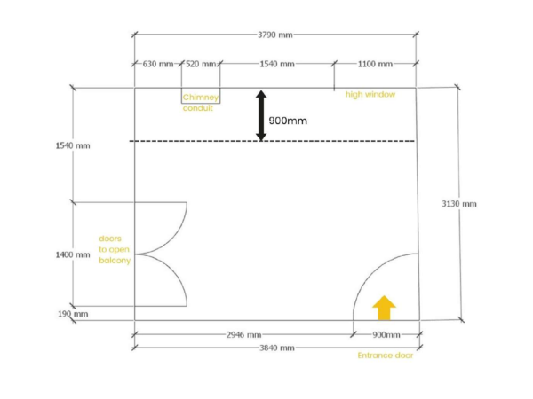
Floor Plan Layout

The design maximizes the narrow space with a bed framed by closets on both sides for storage, and a dresser placed in front of the bed. The L-shaped bathroom fits all the essentials while saving space and making use of the existing plumbing.

Concept Board

The room combines a vintage twist with an eclectic feel, featuring muted colors and raw materials like wood. This creates a warm, natural look that feels both cozy and stylish.

3D Perspectives

The 3D views highlights the efficient use of space, with built-in side closets around the bed and a space-saving L-shaped bathroom. The natural wood tones and muted colors bring warmth and a vintage vibe to the overall design.

Project Details

Floor area

12 m2

Project Scope

Transform a former kitchen, dining room into a bedroom with bathroom

Space(s) Designed

Bedroom and Bathroom

Style(s) Selected

Country, Eclectic, Rustic

Client Testimonials

Work Quality
5.0
Communication
5.0
Value For Money
5.0
Overall Rating
5.0
Sabine C.
Sabine C.

Client

5.0

19 October 2024

Submitting a project on TLDP has been a wonderful experience on many fronts. I have been very impressed with the variety of the designs submitted by the 3 designers. The timelines were also incredibly efficient, on all submissions. Finally all designers really listened to the feed-back and reworked their plans taking my input into account. It was very difficult to chose in the end ! I will use it again for sure for my next projects and will recommend to my friends ! Thank you TLDP !
Read more ↓