No Script

←  Back

Project Deliverables

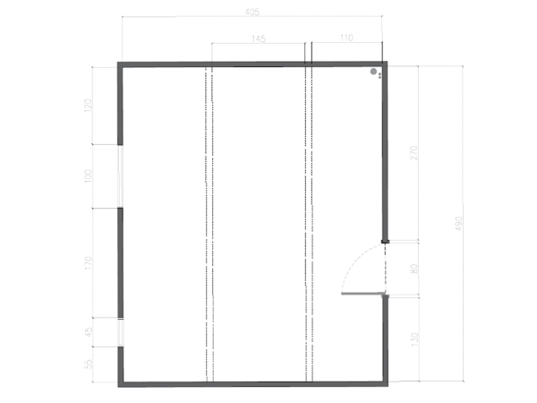
Floor Plan Layout

The challenge lay in seamlessly integrating the new bathroom into the existing bedroom space, ensuring a cohesive ensemble that exudes harmony rather than feeling like an incongruous addition. By skillfully avoiding the creation of a standalone box, I crafted a design that flows organically, creating a unified aesthetic where the boundaries between bedroom and bathroom blur. The result is a space that feels effortlessly integrated, with every element thoughtfully considered to enhance the overall ambiance and functionality.

Concept Board

Crafting a bathroom with a bedroom-style shabby chic and rustic vibe invites vintage charm and cozy elegance. Wood accents and delicate florals for a serene atmosphere. Antique fixtures and rustic details add character to create a charming retreat that blends old-world charm with modern comfort.

3D Perspectives

Employing a palette of soft, inviting hues, alongside a thoughtfully proportioned sanitaryware and ingenious storage solutions, ensured that functionality and charm were seamlessly preserved. The introduction of a sliding partition provided the flexibility to adjust the level of intimacy as desired, effortlessly transforming the space. Whether opened to reveal a deeper perspective or closed to maintain a light, airy ambiance, the incorporation of glass & mirror panels adds a touch of elegance and versatility to the ensemble.

Project Details

Floor area

20 m2

Project Scope

Add a bathroom into an existing bedroom.
Concept, Layout, all FF&E ( Furniture, finishes & Equipment )

Space(s) Designed

Bathroom

Style(s) Selected

Country, Eclectic, Rustic, Shabby Chic

Client Testimonials

Work Quality
5.0
Communication
5.0
Value For Money
5.0
Overall Rating
5.0
Violaine Chanteclair
Violaine Chanteclair

Client

5.0

30 January 2023

I am so glad I came across The Live Design Project! ... Thanks to them we were connected to 3 « soon to be » professionals who provided interesting and very relevant ideas for our bathroom project. It was much easier for us to understand the constraints and the possible layouts. All projects were very different but respected the styles we selected. Not to mention that we received regular feedback and questions from the mentor whenever needed. Overall, a great experience at a very efficient cost! We now have all the materials and plans for a prompt realization of our project. Looking forward to the implementation. A big thank you to the whole team!
Read more ↓