No Script

←  Back

Project Deliverables

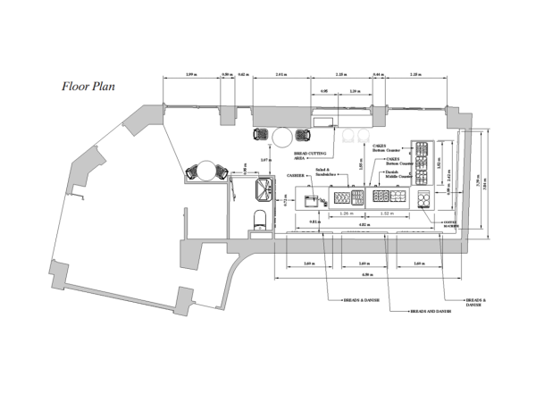
Floor Plan Layout

The operational flow has been meticulously designed to enhance the client experience, from browsing and ordering to payment and packing. Afterward, customers can enjoy a seating area for degustation.

Concept Board

A blend of natural materials, earthy tones, and refined accents reflects the richness of French culinary culture, merging tradition with a modern twist. The intimate design fosters warmth, community, and the joy of sharing, embodying an authentic, elegant, retro-chic vibe, rustic modern touches and a hint of grandma’s comfort.

3D Perspectives

Discover how the concept was seamlessly integrated into the space, creating a welcoming, authentic, and chic boulangerie.

Project Details
Retail / F&B

Floor area

40 m2

Project Scope

Design a Bakery with seating area for snacking & washroom

Space(s) Designed

Cafe, boulangerie & washroom

Style(s) Selected

Rustic modern

Client Testimonials

Work Quality
5.0
Communication
5.0
Value For Money
5.0
Overall Rating
5.0
Amine Oujdi
Amine Oujdi

Client

5.0

3 September 2024

There was a very positive collaboration with TLDP and a great team of juniors. The process was both effective and efficient, providing valuable support to younger interior designers as they kickstart their careers. This concept is highly beneficial for both the juniors and the clients.
Read more ↓