No Script

←  Back

Project Deliverables

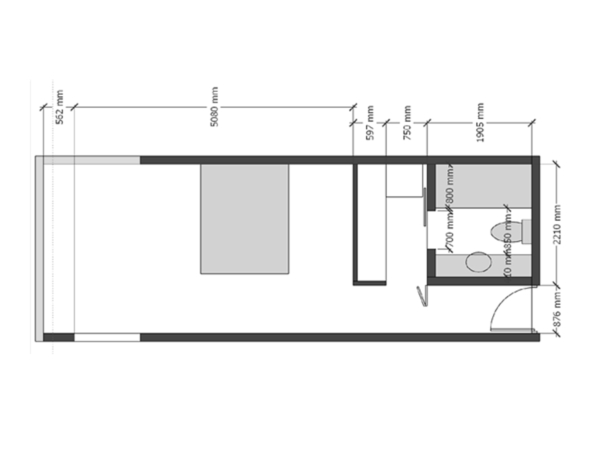
Floor Plan Layout

Maximize use of space with a lot of smart storage areas, and a cozy living area by the window. The bathroom is redesigned to accommodate a double sink.

Concept Board

This combination of a Scandinavian style with the comfort of a hotel layout emphasizes on clean lines, utility, and simple furnishings that are functional and cozy.

3D Perspectives

The use of a blend of textures and soft hues makes this sleek, modern décor feels warm and inviting.

Project Details

Floor area

27 m²

Project Scope

Full revamp of a bedroom and bathroom in a condominium in Singapore, where storage space needs to be maximized. The bedroom is also used as a living & resting area when the house is full.

Space(s) Designed

Bedroom & Bathroom

Style(s) Selected

Scandinavian

Client Testimonials

Work Quality
5.0
Communication
5.0
Value For Money
5.0
Overall Rating
5.0
Caroline & Daryl Teo
Caroline & Daryl Teo

Client

5.0

5 January 2023

My request was to do up my master bedroom with lots of Storage and a chilling corner. The design was right on the spot, as I requested and with some fine tuning, after going through many details with the mentor, the design was what I wanted but now even more practical. The whole experience was that I am able to oversee designer work and make it workable for me who live in Singapore.
Read more ↓